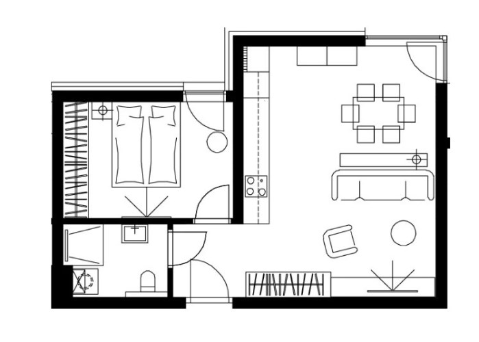
Informacje techniczne, m.in.:
budynek mieszkalny wielorodzinny, zbudowany w technologii tradycyjnej, murowanej
niska zabudowa – wysokość budynku do 12 m
dach dwu- lub wielospadowy (nachylenie 30–40°)
58 lokali mieszkalnych w budynku
zagospodarowany teren osiedla z dużym udziałem zieleni,
minimalny odstęp pomiędzy budynkami - 20m
możliwość zainstalowania klimatyzacji
wentylacja mechaniczna
wykończenie balkonów - płytki układane metodą bez klejową
miejsca postojowe przewidziane na terenie inwestycji ( konieczność zakupienia min. 1 miejsca postojowego - 10 000 zł)
Media i instalacje:
woda – z sieci miejskiej
kanalizacja sanitarna – miejska
energia elektryczna – z sieci
gaz – z sieci gazowej
ogrzewanie – indywidualne podłogowe gazowe, energooszczędne źródło ciepła
podgrzew wody - z własnego pieca elektrycznego
odprowadzanie wód opadowych – kanalizacja deszczowa / retencja / teren własny
opłaty administracyjne wpłacane na rzecz wspólnoty mieszkaniowej - zaliczka na utrzymanie nieruchomości wspólnej ok 7,4 zł/m2.
światłowód
Zapraszamy do zapoznania się z prospektem inwestycyjnym
Dlaczego warto zamieszkać właśnie tu?
Kontakt z naturą - położenie w otoczeniu lasu i doliny Wisły sprawia, że poranny spacer czy aktywność na świeżym powietrzu stają się codzienną przyjemnością.
Przemyślane przestrzenie wspólne - na osiedlu zaplanowano alejki spacerowe, ławki oraz strefę dla najmłodszych.
Energooszczędność i nowoczesne rozwiązania – zastosowanie wysokiej jakości materiałów budowlanych oraz technologii przekłada się na komfort cieplny i niższe koszty utrzymania mieszkań przez cały rok. Nowoczesne budynki z windami zapewniają wygodny dostęp do wszystkich kondygnacji.
Dobra inwestycja - ustroń to miejscowość turystyczna i uzdrowiskowa, od lat ciesząca się dużym zainteresowaniem. Dzięki temu mieszkania w Leśnym Zakątku świetnie sprawdzają się nie tylko do zamieszkania, ale również jako inwestycja pod wynajem – sezonowy lub całoroczny.
Lokalizacja – wygoda i rekreacja - mieszkańcy mają szybki dostęp do najważniejszych punktów Ustronia: centrum miasta, sklepów, restauracji oraz infrastruktury rekreacyjnej. W pobliżu znajdują się szlaki górskie, stoki narciarskie i kolejka na Czantorię.
Dodatkowym atutem jest bliskość wylotu na drogę ekspresową, która umożliwia wygodny dojazd w kierunku Bielska-Białej, Katowic oraz granicy z Czechami. To idealne połączenie górskiego spokoju z dobrą komunikacją.
Zarządzanie nieruchomością:
Wychodząc naprzeciw potrzebom klientów zainteresowanych zakupem nieruchomości w celach inwestycyjnych, oferujemy kompleksowe zarządzanie najmem – zarówno długoterminowym, jak i krótkoterminowym. Zapewniamy profesjonalną obsługę, która pozwala właścicielowi czerpać korzyści z inwestycji bez angażowania się w bieżące sprawy. Po szczegóły zapraszamy do kontaktu – chętnie przedstawimy indywidualną ofertę.
Profesjonalne wsparcie w uzyskaniu kredytu hipotecznego – pomagamy w wyborze najlepszej oferty, przygotowaniu dokumentów oraz przejściu całego procesu kredytowego, aby zakup wymarzonej nieruchomości był prosty i bezstresowy.




Uwaga: mogą wystąpić dodatkowe opłaty za założenie księgi wieczystej oraz ustanowienie hipoteki.